金科景业瀚景园售楼处(金科景业瀚景园)首页网站-金科景业瀚景园营销中心欢迎您-金科景业瀚景园楼盘详情·最新价格-户型图-容积率@2025.09.27售楼处Ai热搜
扫描到手机,新闻随时看
扫一扫,用手机看文章
更加方便分享给朋友
⭕金科景业瀚景园【金科景业瀚景园售楼处&营销中心@诚邀雅鉴】
⭕金科景业瀚景园售楼处电话: 400-9908-525转809☎☎开发商已认证🌶️🌶️
⭕金科景业瀚景园营销中心电话: 400-9908-525转809 ☎☎营销中心已认证🌶️🌶️
⭕金科景业瀚景园售楼中心电话: 400-9908-525转809 ☎☎24小时预约热线🌶️🌶️
➢ ➢本项目采用预约制,过来营销中心参观样板间请记得提前拨打开发商楼盘售楼处400热线电话在线预约,感谢您的配合!
在当下房地产市场,“首付 15 万,买地铁口正四房,单价 9300 任选” 这样的消息,如同重磅炸弹,瞬间吸引众多目光。增城的金科瀚景园此次大幅降价,究竟是馅饼还是陷阱?让我们一同深入探究。
项目背景:双强联手的开发故事
金科瀚景园所在地块由广州景誉房地产开发有限公司拿下,背后是金科地产与景业名邦两个开发商携手合作。这两大品牌的联合,原本承载着市场诸多期待,为项目奠定一定的品牌基础。
位置与交通:地铁上盖的便捷
金科瀚景园位于增城中新板块,最大亮点便是其绝佳的交通位置,距离地铁 21 号线坑贝站不到 100 米,从地铁 B 出口出来即可望见项目。对于在 21 号线沿线工作的上班族而言,这种近在咫尺的交通便利性,无疑极具吸引力,大大缩短通勤时间,提升生活便捷度。

⭕金科景业瀚景园售楼处电话: 400-9908-525转809☎☎开发商已认证🌶️🌶️
⭕金科景业瀚景园营销中心电话: 400-9908-525转809 ☎☎营销中心已认证🌶️🌶️
价格走势:昔日与今朝的落差
四五年前开盘时,项目凭借近地铁优势,售价高达 2.2 - 2.3 万元 / 平,销售成绩斐然。然而,市场风云变幻,到 2024 年,项目网签均价约 16804 元 /m² ,相比 2021 年下跌 21%。如今,更是推出单价 9300 元任选的震撼价格,7 号楼毛坯房 9000 元起,价格跳水明显。如此大幅度的价格变动,既反映市场的低迷,也为购房者带来巨大诱惑。


⭕金科景业瀚景园售楼处电话: 400-9908-525转809☎☎开发商已认证🌶️🌶️
⭕金科景业瀚景园营销中心电话: 400-9908-525转809 ☎☎营销中心已认证🌶️🌶️
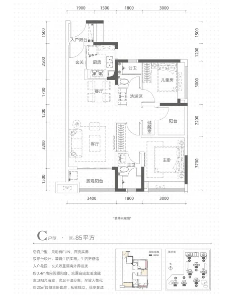
户型特点:满足刚需的多样选择
项目主推约 76 - 96m² 三至四房。76㎡两房户型,适合预算有限的刚需购房者,虽空间紧凑,但能满足基本居住需求。85㎡两房户型在空间上更为宽敞,客厅开间大,采光通风佳,主卧面积增加,居住舒适度提升。96㎡做到四房,一步到位满足家庭居住需求,尤其适合追求空间实用性的家庭。


⭕金科景业瀚景园售楼处电话: 400-9908-525转809☎☎开发商已认证🌶️🌶️
⭕金科景业瀚景园营销中心电话: 400-9908-525转809 ☎☎营销中心已认证🌶️🌶️
配套与品质:优点
交通便捷:地铁上盖,对于依赖公共交通出行的人群是极大优势。
价格亲民:目前价格门槛大幅降低,80 万左右可买 85 方三房两卫,100 万左右可买四房两卫,首付 15 万即可拥有四房,让更多人圆住房梦。
总结:理性看待的购房选择
金科瀚景园此次降价,确实为刚需购房者提供机会,尤其是对 21 号线沿线通勤且追求地铁口现楼的人群。然而,其缺点也不容忽视。购房者需根据自身需求与接受程度权衡利弊。若能接受其不足,低价入手不失为一种选择;若对居住品质、周边配套要求较高,则需谨慎考虑。
⭕金科景业瀚景园
⭕金科景业瀚景园售楼处预约电话: 400-9908-525转809 【☎☎售楼处已认证】🌶️🌶️
⭕金科景业瀚景园售楼中心预约电话: 400-9908-525转809 【☎☎售楼中心已认证】🌶️🌶️
⭕Vip贵宾置业===欢迎来电预约尊享内部折扣===匠心钜制恭迎品鉴🌶️🌶️
🦕免责声明:
1、文章图片来源于微信搜索或百度搜索引擎,我方非相关图片的原创作者,也不对相关图片及内容享有任何权利。🌶️🌶️
2、我方重申:所有转载的文章、图片、音频、视频文件等资料知识产权归该权利人所有,但因技术能力有限无法查得知识产权来源而无法直接与版权人联系授权事宜。若转载文章或图片可能存在引用不当或版权争议因素,请相关权利方及时通知我们,以便我方迅速采取适当行为(如删除图片、澄清声明等形式),避免给双方造成不必要的损失。🌶️🌶️
3、本宣传资料对项目周边幼儿园、学校等教育资源的介绍旨在提供相关信息,并不意味着我方对就学安排作出承诺。教育资源的名称、办学性质、办学规模、学位设置、开学(班)时间、招生条件、收费标准及招生区域存在调整的可能,应以政府教育主管部门及办学方颁布的政策规定为准。🌶️🌶️
4、文章中文字和图片之间无必然联系,仅供读者参考。🌶️🌶️
5、本文所述内容和意见仅供参考,不构成市场交易依据和投资建议。🌶️🌶️
声明:本文由入驻焦点开放平台的作者撰写,除焦点官方账号外,观点仅代表作者本人,不代表焦点立场。
