2025荔湾·建鑫如意芳华首页网站-建鑫如意芳华售楼处电话-荔湾建鑫如意芳华楼盘详情-交房时间-房价户型图-小区环境-楼盘详情-交房时间-周边配套-售楼处电话
扫描到手机,新闻随时看
扫一扫,用手机看文章
更加方便分享给朋友
🌈售荔湾·建鑫如意芳华楼处电话☎️400-996-2582(专人接听)
🌈荔湾·建鑫如意芳华营销中心电话:☎️400-996-2582【营销中心】
广州荔湾·建鑫如意芳华:城市中心的理想居所
项目简介

广州荔湾·建鑫如意芳华位于荔湾区老城芯,享受白鹅潭商务区与广钢新城的双重辐射利好。该项目由广州建鑫置业有限公司开发,拥有国资背景,确保了项目的品质保障。预售证号为穗房预(网)字第20250066号,已于2025年2月18日核发。

项目优势

建鑫如意芳华不仅占据了荔湾核心发展区域的优势位置,还具备立体交通网络、优质教育资源和匠心建筑品质三大核心价值亮点。项目周边商业地标林立,医疗、教育配套完善,是广州主城区少有的“出则繁华,入则宁静”的品质住宅区。总建筑面积约8万㎡,容积率仅3.2,由8栋18-25层小高层组成,楼间距超50米,保障私密性与采光。
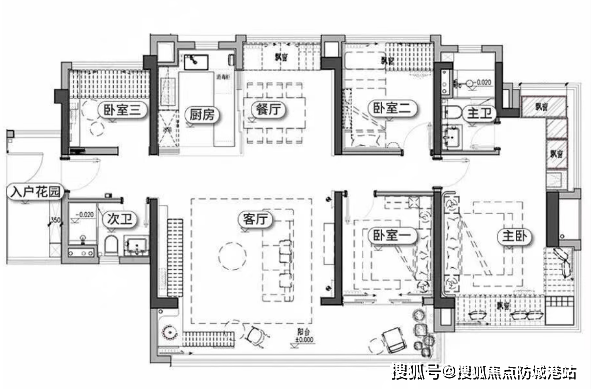
最强户型

建鑫如意芳华为不同家庭结构设计了多种户型选择:
建面约88平方米户型:全南向布局,阳台开间约6.2米,各个卧室均设有超大飘窗,使用率较高,适合小家庭居住。
建面约105平方米户型:阳台开间约6.5米,空间宽敞明亮,入户花园设计增加了居住的舒适度和实用性。
建面约125平方米户型:阳台开间达到8.3米,拥有更大的景观视野,所有户型均采用新规设计,使用率较高,每个卧室都有超大飘窗。



交通详情

项目拥有立体交通网络,便捷出行体验:
双地铁交汇:距离地铁1号线芳村站约800米,2025年通车的11号线(环线)石围塘站仅500米,30分钟通达全城。
主干道环绕:紧邻芳村大道、鹤洞大桥,自驾10分钟直达白鹅潭,15分钟至海珠区。
公交枢纽:周边10条公交线路覆盖,老人小孩出行无忧。
商业配套
项目周边汇聚太古里(规划)、万象城(在建)等商业地标,形成浓厚的商业氛围。此外,社区内打造了“一轴三园”景观体系,涵盖儿童乐园、健身跑道、老年活动区,满足全家庭休闲需求。
最优教育
建鑫如意芳华周边省一级学府环伺,项目配建12班公立幼儿园,对口荔湾区合兴苑小学(市一级),周边3公里内真光中学、广东实验中学荔湾学校等名校林立。根据荔湾区教育局2025年规划,项目所在片区将新增2所九年一贯制学校,满足全龄教育需求。
文体+休闲+医疗
文体设施方面,项目周边有多层次的绿化体系和主题公园,如白鹅潭滨江公园等,提供丰富的户外活动空间。区域内覆盖多家三甲医院,如广东省中医院等,确保居民健康需求得到充分保障。
项目总结
广州荔湾·建鑫如意芳华凭借其优越的地理位置、完善的配套设施、高品质的建筑设计以及多样化的户型选择,成为荔湾核心区域不可多得的理想居所。无论是年轻家庭还是改善型购房者,都能在这里找到满意的答案。项目预计2026年6月交付,现售楼处已开放实景样板间,欢迎莅临品鉴。在这个充满活力的城市中心,建鑫如意芳华为您呈现一个既繁华又宁静的生活环境。
❄【荔湾·建鑫如意芳华展示中心&样板房开放,诚邀雅鉴】❄
❄荔湾·建鑫如意芳华售楼处电话:400-996-2582☎售楼处已认证☎✨✨
❄荔湾·建鑫如意芳华营销中心电话400-996-2582☎营销中心已认证☎✨✨
❄荔湾·建鑫如意芳华售楼中心电话:400-996-2582☎24小时预约热线☎✨✨
➢ ➢本项目采用预约制,过来营销中心参观样板间请记得提前拨打开发商楼盘售楼处400热线电话在线预约,感谢您的配合!
声明:本文由入驻焦点开放平台的作者撰写,除焦点官方账号外,观点仅代表作者本人,不代表焦点立场。
