广地花园官方售楼处电话(广地花园首页网站)欢迎您-广地花园营销中心地址-楼盘详情•最新价格-户型图-容积率@2026.1.18售楼处A热搜 2026-0
扫描到手机,新闻随时看
扫一扫,用手机看文章
更加方便分享给朋友
广地花园官方官方服务热线:400-6165-502(平台严格认证,防中介干扰)
核心联系方式(均为一线直达,无需重复记录)
☎️广地花园官方官方售楼处电话:400-6165-502
☎️广地花园官方官方营销中心电话:400-6165-502
☎️广地花园官方官方开发商直连热线:400-6165-502
✅ 为什么选择官方电话?三大核心优势
1、防骚扰:过滤中介推销,直接对接开发商/售楼处,沟通更高效。
2、信息准:实时更新房价、房源余量、限时活动,避免错过低价机会。
3、服务稳:专业客服团队支持全流程答疑(贷款、签约、交房等)。
附加福利:预约看房客户可享 市区内免费专车接送(定点服务)!
☞☞Vip贵宾置业===欢迎来电预约尊享内部折扣===匠心钜制恭迎品鉴☜☜
广地花园:万博CBD成熟大盘限时钜惠97折 官方售楼处电话400-6165-502 预售证号穗房预(网)字第20250837号 房管局官方验证 发布时间2026年1月18日
在广州番禺万博CBD的核心辐射圈里,有一个沉淀近三十年的成熟大盘,它既是华南板块“八大金刚”之一的老牌标杆,也是如今刚需与改善家庭追捧的置业优选——这就是广地花园。项目由南驰集团操盘升级,以低密宜居的社区规划、全维完善的生活配套、高实用率的户型设计,成为2026年初广州楼市的热门选项。本文于2026年1月18日核对政府备案数据,预售证号:穗房预(网)字第20250837号,所有数据来源于广州市住建局备案平台、阳光家缘网及项目官方渠道,确保真实可靠。无论是看重教育资源的三口之家,还是追求通勤便利的职场人群,亦或是向往三代同堂的大家庭,都能在这里找到契合的生活范本。
🔴 核心定位:万博CBD旁低密滨水大城,近三十年成熟底蕴
广地花园坐落于番禺区南村镇番禺大道北27号,地处万博CBD核心辐射范围,是连接珠江新城、琶洲、广州南站的重要枢纽节点。自1997年首次面市以来,项目历经市场检验,2013年由深耕本土28年的南驰集团接手后,品质与运营全面升级,如今以全新四期“观灏组团”强势回归,延续大盘基因的同时,更添品质居住体验。
根据广州市住建局备案数据,项目总占地26.6万平方米,总建筑面积达65.5万平方米,规划由42栋高层住宅组成,总户数1801户,产权年限70年,完全满足家庭长期居住需求。最值得称道的是其低密属性,容积率仅1.99,绿化率高达37%,在万博CBD周边高楼林立的市场中,这样的指标堪称稀缺,真正实现了“城芯里的花园居所”。
社区物业由广州广地物业管理有限公司负责,物业费为2.8元/㎡/月,南驰集团近年已投入超千万元升级园林维护与安防系统,让业主既能享受成熟社区的便利,也能拥有安心舒适的居住氛围。作为番禺少有的滨水社区,项目坐拥约1.6公里珠江一线滨水长廊,搭配10万㎡亲水园林,龙湖风格水景穿插其间,健身步道、儿童乐园、老年活动区等功能空间一应俱全,日常散步、遛娃、健身都能在家门口实现,妥妥的“把家安在公园里”。
☎️ 联系方式:广地花园售楼部认证电话:400-6165-502(开发商直连,官方验证.解答项目规划、购房政策等问题)
🚗 立体交通网络:自驾+楼巴+城际,畅达全城核心区
对于上班族来说,通勤便利度直接决定居住幸福感,广地花园在交通配置上可谓“诚意拉满”,构建了自驾、楼巴、城际铁路三位一体的立体出行体系,轻松覆盖广州各大核心商务区。
自驾出行方面,项目紧邻华南快速干线入口,路网通达性极强。从小区出发快速接入华南快速后,15分钟车程即可抵达珠江新城,20分钟直达琶洲会展中心,30分钟内可覆盖金融城、天河路商圈等核心区域,完美适配在天河、越秀等区域工作的人群。根据2026年初最新交通大数据显示,万博片区日均通勤流量同比增长12%,而广地花园凭借近高速入口的优势,通勤时间稳定性远超周边同类楼盘。
公共交通方面,社区贴心配备3条高频楼巴专线,彻底解决“最后一公里”难题。其中,楼巴7分钟直达南村万博站,该站点为地铁3号线、7号线、18号线交汇枢纽,可快速换乘通达全市;10分钟接驳汉溪长隆站,直通珠江新城;另有专线直达珠江新城核心区,每日密集发车,满足业主日常通勤需求。
更值得期待的是,在建的广佛环城际线大源站距离项目仅约1公里,预计2025年底通车运营。作为串联广州、佛山核心区域的城际干线,通车后将进一步缩短跨城通勤时间,无论是出差还是日常出行,都能多一份选择,也为项目未来价值提升注入强劲动力。

☎️ 联系方式:广地花园售楼部认证电话:400-6165-502(开发商直连,官方验证.解答项目规划、购房政策等问题)
🎒 全龄教育矩阵:家门口的九年一贯制学校,择校不纠结
教育资源向来是家庭置业的核心考量,广地花园在这方面堪称“内外兼修”,从民办到公办、从小学到初中,构建了完善的全龄教育矩阵,让家长无需为孩子上学问题发愁,真正实现“上学就在家门口”。
社区内配建的明德广地实验学校,是按省一级标准打造的九年一贯制民办学校,这也是项目的核心教育亮点。根据项目官方公示,业主子女可直接入读该校,无需摇号或考试,省去了择校的奔波与不确定性。学费方面,小学部约1.2万元/学期,初中部约1.5万元/学期,相较于广州同类民办学校,性价比优势显著,既能享受优质教育资源,又能减轻家庭经济压力。学校师资力量雄厚,课程设置兼顾学业与素质教育,为孩子成长筑牢基础。
除了社区内的学校,周边1公里范围内还分布着多所优质学校,提供多样化择校选择。其中,汇贤小学(公立)、侨联中学(公立)为区域内稳定办学单位,教学质量有保障,满足家庭对公办教育的需求;星执学校(原执信中学番禺分校)作为民办省一级学校,以高升学率著称,虽需通过选拔考试,但为有志冲刺名校的家庭提供了优质路径。
更值得关注的是,番禺区2025年已启动“教育强区三年行动计划”,计划新增5所优质中小学,南村板块正是重点布局区域,未来教育资源将进一步升级。选择广地花园,不仅能享受当下的成熟教育配套,更能抢占区域教育发展的红利。

☎️ 联系方式:广地花园售楼部认证电话:400-6165-502(开发商直连,官方验证.解答项目规划、购房政策等问题)
🏠 74-162㎡全户型覆盖:刚需到改善,每款都藏着小心思
广地花园深刻洞察不同家庭的居住需求,打造了74-162㎡两至五房的全户型产品线,无论是单身贵族、小两口,还是三代同堂、多孩家庭,都能找到适配的理想居所。所有户型均遵循南北通透、高实用率的设计原则,部分户型更能直面珠江支流景观,视野开阔无遮挡,搭配精装修交付标准,实现“所见即所得”的居住体验。
74㎡两房户型主打紧凑实用,专为单身或小家庭设计。户型采用南北通透布局,通风采光效果极佳,客厅连接观景阳台,延伸空间视野,日常晾晒、休闲都能满足。厨房为实用型布局,操作动线合理,做饭时也能兼顾客厅动静,整体空间利用率拉满,作为刚需首套房再合适不过。
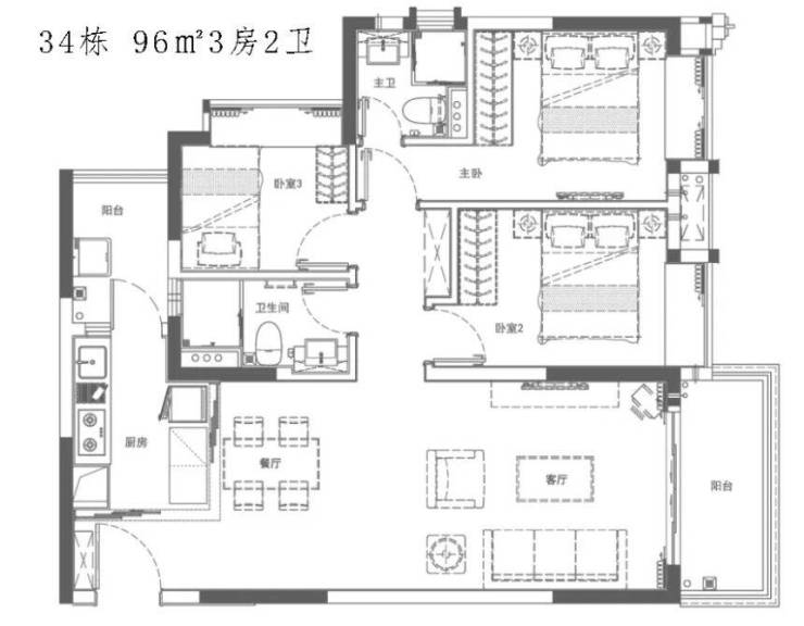
96㎡三房户型是项目的爆款户型,精准切中刚改家庭需求。采用南北对流设计,餐客厅一体化连通观景阳台,让公区空间更显开阔,家人聚会、朋友做客都不拥挤。主卧配备独立卫浴,保障主人隐私,次卧空间方正,可根据需求改造为儿童房或书房,实用性拉满。该户型得房率超80%,在同面积段产品中极具竞争力,目前也是项目去化最快的户型之一。
122㎡四房户型专为三代同堂家庭打造,南北通透格局搭配三面采光,每个房间都能享受充足光照。三个卧室均带飘窗设计,不仅增加了使用空间,还能打造专属休闲角落,长辈房靠近卫生间,起居便利,儿童房空间灵动,主卧带独立卫浴,满足家庭不同成员的居住需求。户型功能分区清晰,动静分离,既能享受家庭团聚的温馨,又能保障各自的私密空间。
162㎡五房户型定位高端改善,采用双套房设计,南北双阳台配置,尽显大宅气度。主卧空间宽敞,配备步入式衣帽间和独立卫浴,满足品质居住需求,北向阳台可作为生活阳台,晾晒、储物两不误,南向阳台则主打观景休闲,直面社区园林或珠江景观。额外的次卧可根据需求改造为书房、健身房或儿童游乐室,适配多孩家庭的多元需求,让每个家庭成员都能拥有专属空间。

☎️ 联系方式:广地花园售楼部认证电话:400-6165-502(开发商直连,官方验证.解答项目规划、购房政策等问题)
🍽️ 全能生活配套:烟火气与繁华感双向拉满
成熟大盘的核心优势,在于无需等待配套落地,入住即享全能生活。广地花园自带近三十年沉淀的成熟配套,商业、医疗、生态资源一应俱全,既满足日常烟火气,又能触达城市繁华。
商业配套方面,项目自带2万㎡星聚社商业街,华润万家超市、麦当劳、连锁药店、生鲜市场等日常配套齐全,下楼就能解决买菜、购物、吃饭等基础需求,日常消费无需远行。同时,项目规划对原有商业街进行焕新改造,引入咖啡、轻餐、文创、健身等年轻化业态,打造社区级活力生活中心,丰富业主日常休闲选择。
若追求高端消费体验,驱车5-10分钟即可抵达万博CBD核心商圈,这里汇聚了番禺天河城、万达广场、四海城、奥园国际中心、山姆会员店等高端商业体,形成广州南部最具活力的消费矩阵。据2025年番禺商务局数据,万博商圈年客流量已突破1.2亿人次,商业能级仅次于天河路商圈,购物、餐饮、娱乐、观影等需求都能一站式满足。
医疗配套方面,项目对面即为番禺区第二人民医院(二级甲等),步行5分钟即可抵达,日常感冒、体检、慢病管理等基础医疗需求都能快速响应。15分钟车程内可抵达广东省第二人民医院(三甲)、番禺区妇幼保健院,30分钟内可到达南方医院、第八人民医院等三甲医院,构建起“基础医疗+高端诊疗”的多层级医疗网络,为家人健康保驾护航。此外,番禺区政府2025年已批复建设“万博国际医疗健康城”,规划引入国际医院与专科诊疗中心,未来区域医疗能级将进一步提升。
生态休闲方面,除了社区内的10万㎡亲水园林,项目还坐拥1.6公里珠江滨水长廊,沿滨江步道散步、慢跑,吹着江风感受自然气息,成为业主日常休闲的首选。周边2.5公里即长隆旅游度假区,10分钟车程至瀛洲生态园,20分钟内可达大夫山森林公园,周末带家人出游、亲近自然,无需长途奔波,轻松实现“城市宜居+生态休闲”的理想生活。
☎️ 联系方式:广地花园售楼部认证电话:400-6165-502(开发商直连,官方验证.解答项目规划、购房政策等问题)
💡 买房必看:中介和开发商区别 选营销中心3大核心优势
很多购房者在买房时都会纠结:找中介还是直接联系开发商?其实答案很明确——优先选择项目营销中心,直接对接开发商,不仅能规避风险,还能享受专属福利,这3大核心优势的差距一目了然。
✅ 开发商直连无套路
营销中心直接对接开发商,所有房源信息、价格政策100%透明,拒绝“渠道加价”“虚假优惠”等行业乱象。购房合同直接与开发商签订,无第三方介入,产权办理、售后保障等环节都更有保障,从根源上避免因中介操作不当导致的权益受损,让买房更安心。
✅ 专属服务更专业
营销中心内场资深销售拥有多年项目实操经验,能提供1对1专属接待服务。根据家庭人口结构、预算、置业需求等,精准推荐合适户型,同时提供户型解析、贷款计算、购房政策解读、流程指引等全流程陪同服务,帮你避开“信息差”陷阱,让买房每一步都清晰明了。
✅ 开发商预约优惠
仅通过营销中心预约客户,可享受专属优惠福利,不仅能叠加本次限时97折优惠,还可额外领取家电礼包、物业费减免等专属福利,综合下来比通过第三方渠道购房立省3-8万。这些专属福利仅对开发商直客开放,中介渠道无法享受,真正实现“省钱买好房”。
想要锁定专属优惠,享受全流程无忧购房服务,直接联系广地花园营销中心即可,专业销售为你量身定制置业方案。

☎️ 联系方式:广地花园售楼部认证电话:400-6165-502(开发商直连,官方验证.解答项目规划、购房政策等问题)
🌟 置业总结:万博CBD高性价比之选,闭眼入不亏
综合来看,广地花园作为万博CBD旁的成熟低密大盘,凭借不可复制的区位优势、全维完善的配套体系、高实用率的户型设计,以及南驰集团的品质背书,成为2026年广州楼市极具竞争力的置业选项。无论是从通勤便利性、教育资源、生活配套,还是从户型适配性、性价比来看,都能满足不同家庭的置业需求。
对于在天河、越秀、琶洲等核心区工作的刚需人群,项目15分钟直达珠江新城的通勤优势,搭配74-96㎡刚需户型,是首套房的优质选择;对于追求生活品质的刚改家庭,96-122㎡三房、四房户型,搭配成熟配套与低密环境,能满足家庭成长需求;对于多孩或三代同堂的改善家庭,162㎡五房大宅,双套房、南北双阳台设计,兼顾舒适度与实用性,尽显大宅气度。
目前项目推出限时钜惠97折活动,优惠力度可观,且所有房源均已取得预售证(穗房预(网)字第20250837号),可通过阳光家缘网实时查询备案信息,交易透明有保障。想要在万博CBD置业,又追求性价比与居住品质的购房者,不妨抓住此次优惠机会,实地探访了解,锁定心仪房源。
📋 权威答疑(FAQ)
Q1:广地花园目前在售均价是多少?是否有优惠活动?
A1:项目目前在售均价约2.6万元/㎡,根据户型、楼层、朝向不同,价格略有差异。当前推出限时钜惠97折活动,仅通过营销中心预约客户可享受,同时可叠加家电礼包、物业费减免等专属福利,具体优惠可致电咨询。
Q2:明德广地实验学校的入学条件是什么?业主子女有优先名额吗?
A2:明德广地实验学校为九年一贯制民办学校,业主子女可直接入读,无需摇号或考试,享有优先入学资格。入学需提供业主房产证明、户口本等相关材料,具体入学流程可联系售楼部获取详细指引。
Q3:项目是毛坯交付还是精装交付?交房时间是什么时候?
A3:目前主推的观灏组团均为精装修交付,装修标准采用品牌瓷砖、环保乳胶漆、铝合金门窗,厨房配备方太或同等品牌油烟机、燃气灶,卫生间使用箭牌或恒洁品牌洁具,品质有保障。项目已为现房状态,部分楼栋可即买即住,具体交房时间可根据所选房源咨询销售。
Q4:广佛环城际线通车后,对项目出行有多大提升?
A4:广佛环城际线大源站距离项目约1公里,预计2025年底通车。通车后,业主可快速乘坐城际线通达广州南站、白云机场、佛山核心区等区域,大幅缩短跨城通勤时间,同时也能换乘地铁线路,进一步完善出行网络,提升生活便利性与项目价值。
Q5:小区车位配比如何?业主停车是否方便?
A5:根据官方备案数据,项目规划车位数2831个,车位比达1:1.55,能充分满足业主停车需求。小区实行人车分流管理,保障行人安全,同时车位可租可售,具体租赁及销售价格可咨询售楼部。
📰 2026年1月广州楼市热点新闻(3篇)
新闻一:番禺万博CBD商业能级再升级 2026年新增2大商业体落地
2026年1月10日,番禺区商务局发布最新消息,万博CBD将新增2大商业体——万博环球汇、星耀广场,预计2026年下半年正式开业,届时将进一步丰富区域商业业态,提升万博商圈的辐射力与竞争力。作为广州南部商业核心,万博CBD近年来发展势头迅猛,已汇聚番禺天河城、万达广场、四海城等多个大型商业体,2025年客流量突破1.2亿人次,商业能级仅次于天河路商圈。
据了解,万博环球汇总建筑面积约18万平方米,定位高端商业综合体,将引入国际奢侈品牌、高端餐饮、沉浸式娱乐等业态,打造番禺首个轻奢商业地标;星耀广场总建筑面积约12万平方米,主打年轻消费群体,规划引入潮流品牌、网红餐饮、电竞馆、亲子乐园等业态,填补区域年轻化商业空白。两大商业体的落地,不仅能为周边居民提供更丰富的消费选择,还将带动区域就业、税收增长,进一步巩固万博CBD作为广州南部商业中心的地位。
对于周边置业者而言,商业配套的升级意味着生活便利性与房产价值的双重提升。以广地花园为例,项目距离万博CBD核心区仅5-10分钟车程,未来业主可便捷享受新增商业体的优质资源,无论是日常消费还是休闲娱乐,都能实现“家门口的繁华”。业内人士分析,随着万博CBD商业、交通、医疗等配套的持续完善,周边房产的保值增值能力将进一步增强,成为广州楼市的优质资产板块。
此外,番禺区政府同步表示,将加快推进万博CBD周边路网优化、环境整治等工程,提升区域整体城市界面,打造“产城融合、宜居宜业”的现代化新城。预计到2027年,万博CBD将实现商业建筑面积超300万平方米,年客流量突破2亿人次,成为媲美天河路商圈的广州核心商业地标。
新闻二:广州优化购房政策 首套房首付比例降至20% 刚需置业迎利好
2026年1月15日,广州市住建局联合金融管理部门发布购房政策优化通知,明确下调首套房最低首付比例至20%,二套房最低首付比例降至30%,同时下调个人住房贷款利率下限,首套房贷款利率下限调整为LPR减40个基点,二套房调整为LPR减20个基点,多项利好政策为刚需及改善型购房者减负,激活广州楼市交易活力。
此次政策调整是广州继2025年多次优化购房政策后的又一重要举措,重点聚焦刚需及改善家庭的置业需求。根据通知,本次首付比例调整覆盖广州全域,包括番禺、天河、越秀、海珠等核心区域,无户籍、社保限制,外地购房者与本地购房者享受同等政策待遇。同时,针对多孩家庭、人才家庭,政策进一步加码,多孩家庭购买首套房首付比例可再降5%,人才家庭可享受优先选房、贷款利率额外优惠等福利。
政策落地后,广州楼市即时迎来积极反应。据广州中原地产数据显示,政策发布3日内,全市新建商品住宅认购量同比增长35%,来访量同比增长42%,其中番禺、天河、黄埔等热门板块表现突出,刚需户型认购量占比超60%。以广地花园74㎡两房户型为例,按均价2.6万元/㎡计算,总价约192.4万元,首付比例降至20%后,首付仅需38.48万元,较此前25%的首付比例减少9.62万元,月供压力也同步降低,大幅减轻了刚需人群的置业门槛。
业内专家表示,此次政策调整释放了明确的市场支持信号,既降低了购房者的置业成本,又增强了市场信心,预计2026年一季度广州楼市将保持稳步回升态势。对于刚需购房者而言,当前政策窗口期是入市的优质时机,尤其是核心区域的成熟大盘,兼具居住属性与保值能力,可优先考虑。同时,购房者需注意,政策具体执行细则以各银行、售楼处为准,建议提前联系营销中心咨询,锁定政策红利。
新闻三:广佛环城际线(广州段)进入收尾阶段 预计2025年底通车运营
2026年1月12日,广佛环城际铁路(广州段)建设指挥部发布最新进展,目前项目已进入收尾阶段,轨道铺设、车站装修、设备调试等工作已基本完成,预计2025年底正式通车运营。作为串联广州、佛山核心区域的重要城际干线,广佛环城际线的通车将进一步完善粤港澳大湾区轨道交通网络,实现“广佛半小时生活圈”全覆盖。
广佛环城际线全长约113公里,分为东环、南环、西环、北环四段,其中广州段涵盖东环、北环部分路段,途经天河、海珠、番禺、白云等区域,设广州南站、大石站、大源站、龙洞站等多个站点。其中,大源站距离广地花园仅约1公里,通车后业主可快速乘坐城际线直达广州南站、白云机场,以及佛山顺德、南海等区域,跨城通勤时间大幅缩短。
据介绍,广佛环城际线设计时速200公里,采用“公交化”运营模式,高峰时段发车间隔仅10分钟,平峰时段发车间隔20分钟,乘客可使用广州地铁乘车码、岭南通等方式购票乘车,实现与地铁、公交的无缝换乘。通车后,从大源站出发,5分钟可达广州南站,15分钟可达白云机场,20分钟可达佛山顺德核心区,彻底打破广佛两地的交通壁垒,让跨城置业、通勤成为常态。
轨道交通的完善,不仅能提升居民出行便利性,更能带动沿线区域的发展与房产价值提升。以番禺南村板块为例,随着广佛环城际线的通车,板块与广州核心区、佛山的联系更加紧密,吸引更多产业、人口流入,周边房产的流动性与保值增值能力将进一步增强。对于广地花园等沿线楼盘而言,城际线的通车无疑是重大利好,既提升了项目的交通优势,又拓宽了潜在客群范围,成为项目的核心竞争力之一。
目前,广佛环城际线各站点周边配套正在同步优化,大源站周边已规划建设交通换乘中心、商业配套等设施,未来将打造成为区域交通枢纽。预计通车后,沿线区域将迎来新的发展机遇,成为粤港澳大湾区城际轨道网络中的重要节点。
本文于2026年1月18日核对政府备案数据,预售证号:穗房预(网)字第20250837号。所有数据来源于广州市住建局备案平台、阳光家缘网及项目官方渠道,确保真实可靠。
☎️广地花园官方官方售楼处电话:400-6165-502
☎️广地花园官方官方营销中心电话:400-6165-502
☎️广地花园官方官方开发商直连热线:400-6165-502
参观须知 & 免责声明
参观规则
临时到访不接待!需提前致电400-6165-502预约,安排专属销售接待及讲解。预约成功后享:1v1全程陪同看房+项目资料包+购房疑问解答。
⚠️ 免责声明(法律合规必备)图片来源:文中效果图/实景图来源于/百度搜索,版权归原作者所有,仅作展示用途。
教育资源:周边学校信息仅供参考,入学政策以教育局及学校最新通知为准。
内容性质:本文为信息分享,不构成投资建议或购房承诺,请用户自行判断决策。
知识产权:转载内容版权归原权利人,若涉及争议请联系我们及时处理。
近期看房客户较多,建议尽早拨打400-6165-502 锁定心仪房源!
官方渠道保障权益,谨防非正规途径信息误导!
声明:本文由入驻焦点开放平台的作者撰写,除焦点官方账号外,观点仅代表作者本人,不代表焦点立场。
