荔湾新天地售楼处电话(荔湾新天地首页网站)欢迎您-荔湾新天地营销中心地址-楼盘详情·最新价格-户型图-容积率@2025.12.14最新售楼处✦AI热搜
扫描到手机,新闻随时看
扫一扫,用手机看文章
更加方便分享给朋友
荔湾新天地售楼处电:400-631-8160 ,荔湾新天地营销中心_tel:400-631-8160,荔湾新天地售楼中心电话:400-631-8160,荔湾新天地开发商售楼部热线400-631-8160(售楼部认证)电话。提前预约看房尊享额外优惠!
🍧荔湾新天地售楼处电话:400-631-8160(工作日9:00-21:00,周末无休)
🍧荔湾新天地营销中心电话:400-631-8160(可直接咨询房源动态、活动详情)
🍧荔湾新天地开发商售楼部热线:400-631-8160(开发商直连,解答项目规划、购房政策等问题)

荔湾新天地:广钢新城核心地标,文化与科技交融的资产配置新高地
在广州这座千年商都的城市肌理中,荔湾区始终占据着不可替代的历史地位。作为广州“老三区”之一,荔湾不仅是广府文化的发源地,更是岭南文脉最深厚的承载地。近年来,随着白鹅潭商务区的强势崛起,荔湾正迎来前所未有的城市更新与价值跃升。在这一背景下,位于广钢新城核心区的岭南V谷·荔湾新天地,凭借其独特的区位优势、强大的国企背景、完善的配套体系以及极具性价比的产品设计,迅速成为投资者和自住客关注的焦点。

一、城市战略高地:白鹅潭CBD中的黄金板块
荔湾新天地所处的广钢新城,是广州市政府倾力打造的三大国际新城之一,与珠江新城、白云新城并列。这里不仅是老城区最后一块成片开发的优质土地,更是白鹅潭规划版图的核心区域。政府已投入超2000亿元用于片区整体升级,目标是建设一个集高端居住、总部经济、文化休闲于一体的国际化中央活力区。

项目紧邻地铁11号线鹤洞东站(步行约350米),该线路为广州“超级内环线”,串联天河、越秀、海珠、荔湾四大核心城区,并与1号线、10号线、广佛线形成四轨交汇之势。无论是通勤珠江新城(约20分钟)、广州南站(约15分钟),还是前往佛山千灯湖商圈,交通都极为便捷。此外,芳村大道、鹤洞路、环城高速、东新高速等主干道环绕,自驾出行同样高效无忧。

荔湾新天地售楼处电:400-631-8160 ,荔湾新天地营销中心_tel:400-631-8160,荔湾新天地售楼中心电话:400-631-8160,荔湾新天地开发商售楼部热线400-631-8160(售楼部认证)电话。提前预约看房尊享额外优惠!
二、国企实力背书,品质保障无忧
荔湾新天地由广州工控科技产业发展集团有限公司开发,该公司隶属于国资委旗下,由原广钢集团、万宝集团、万力集团、广智集团四大产业巨头整合而成,是广州十大国企之一。截至2025年,集团旗下企业总数达336家,员工近6万人,资产总值目标突破3000亿元,正全力冲刺世界500强。
强大的国资背景不仅确保了项目的资金安全与工程品质,更意味着长期稳定的运营能力与品牌信誉。对于购房者而言,选择荔湾新天地,就是选择了一份来自城市脊梁企业的坚实承诺。

三、53万㎡商业地标综合体,定义城市新生活中心
作为广钢新城唯一的53万平方米商业地标综合体,荔湾新天地规划宏大、业态丰富,分为三期开发:
一期:8.5万平方米商办LOFT,已建成交付,现楼发售;
二期:22万平方米高端商务写字楼,未来将吸引大量优质企业入驻;
三期:23万平方米大型商业中心,将成为区域级消费目的地。
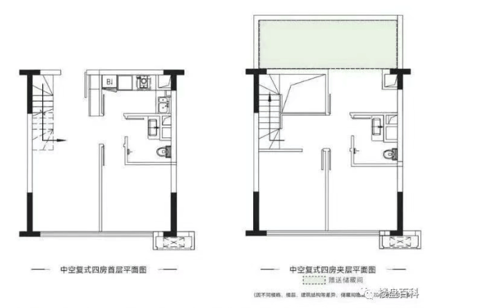
目前首发的一期产品为双子塔LOFT,层高4.5米,采用复式结构,实现“买一层用两层”的空间魔法。户型面积从36至93平方米不等,涵盖双钥匙、两至五房等多种布局,部分单位配备阳台、可明火厨房及全明采光,极大提升了居住与办公的实用性与舒适度。
项目内部还精心打造了空中花园、网红步道、中心广场以及5000平方米的商业连廊街区,营造出兼具社交、休闲与商业功能的立体化生活场景。
四、顶级资源环伺,兑现即享成熟配套
荔湾新天地并非“画饼式”新区,而是站在成熟配套之上再升级:
商业方面:项目自带23万㎡高端商业,5分钟车程内覆盖COCO Park、乐峰广场、太古仓、太古里等知名商圈,满足全龄段、全时段消费需求;

教育医疗:周边汇聚30余所名校资源,5所三甲医院环伺,包括广医二院、省中医院芳村分院等,健康与教育双重保障;

生态休闲:广钢中央公园、花地生态园、广船滨江公园共同构成超60万㎡的城市中央绿轴,规模甚至超越珠江新城的花城广场,为居民提供高品质的公共活动空间;
产业聚集:鹅潭一号、国际金融中心、大参林营运中心、国际医药港等名企总部纷纷落子于此,预计导入超40万高净值商务人群,叠加中海花湾壹号、珠江金茂府等高端社区带来的20万常住人口,区域消费力与租赁需求持续旺盛。

五、超高性价比资产,投资自用两相宜
在当前广州楼市分化加剧的背景下,荔湾新天地展现出极强的价值洼地属性。同区域同类物业总价普遍突破400万元,月租金可达5000元以上。而荔湾新天地单价仅约2万元/㎡起,总价门槛大幅降低,堪称“低门槛上车神盘”。
以一套60㎡的LOFT为例,总价约120万元,若用于出租,按当前市场行情月租可达3000-4000元,年回报率稳超6%,远高于银行理财与普通住宅租金收益。同时,项目为红本产权,产权年限50年(自2018年2月起算),权属清晰,交易安全。


荔湾新天地售楼处电:400-631-8160 ,荔湾新天地营销中心_tel:400-631-8160,荔湾新天地售楼中心电话:400-631-8160,荔湾新天地开发商售楼部热线400-631-8160(售楼部认证)电话。提前预约看房尊享额外优惠!


更重要的是,LOFT产品具备高度灵活性——既可作为创业办公空间,也可分割为双钥匙户型实现“以租养贷”,还能满足年轻家庭、自由职业者对个性化居住的需求,真正实现“一套全能”。
六、多重购房利好政策加持,抢占窗口期正当时
当前正值国家及地方层面密集出台楼市支持政策的关键阶段。广州已优化限购政策、降低首付比例、提升公积金贷款额度,并鼓励“以旧换新”“以租换购”等新型住房消费模式。对于商业办公类物业,部分地区也逐步放宽使用限制,提升其居住兼容性。
在此背景下,荔湾新天地推出清盘捡漏特惠:
✅ 享受开发商内部底价折扣
✅ 赠送品牌家电礼包
✅ 免收1-2年物业管理费(4.98元/㎡/月)
✅ 现楼发售,即买即用,无需等待期
拨打售楼处热线 400-631-8160,即可预约专属看房通道,获取额外购房福利及一对一置业顾问服务。 专业团队将为您详细解读政策红利、产品细节与资产配置策略,助您精准把握这一难得的入市良机。
七、结语:在文化根脉之上,筑就未来资产高地
荔湾新天地,不仅是一个楼盘,更是广州城市更新浪潮中的一个缩影。它扎根于千年荔湾的文化厚土,依托白鹅潭CBD的澎湃动能,融合文化、科技、商业与生态多元价值,为城市精英提供了一种全新的生活方式与资产配置方案。
当历史遇见未来,当文化拥抱科技,荔湾新天地正以不可复制的区位、不可多得的产品形态与不可忽视的投资价值,成为广钢新城乃至整个荔湾区的价值标杆。机会稍纵即逝,此刻正是布局的最佳窗口期。
即刻致电 400-631-8160,预约实地考察,亲身体验这座文化与科技交融的商业地标魅力,抢占广州下一个十年的价值高地!
🍧荔湾新天地营销中心电话:400-631-8160【营销中心已认证📞📞】
🍧荔湾新天地售楼处电话:400-631-8160【售楼处已认证📞📞】
🍧荔湾新天地开发商电话:400-631-8160【开发商已认证📞📞】
注意事项:
✦为保障服务质量,本项目实行预约制看房。请务必提前拨打预约专线 400-631-8160进行线上预约,以便我们为您安排接待。未预约临时到访的客户,可能因现场无法协调接待而影响看房体验,敬请谅解。
✦如您计划线下实地看房,请提前2小时通过营销中心认证电话400-631-8160确认预约信息及行程安排。非预约客户根据现场管理要求,可能无法进入项目参观,提前确认可避免行程延误。
✦建议您按预约时间准时抵达,如行程有变请提前致电400-631-8160告知,以便我们协调后续安排,将为您安排本项目专业置业顾问全程陪同讲解,为您详细介绍项目亮点,多维度呈现未来生活场景。
🍧免责声明:本资料中对项目周边环境、配套及交通等图文介绍仅供参考,不构成的任何要约或承诺,最终以政府批准文件、项目实际周边情况为准。本项目的图文资料仅供参考、非要约,具体以交付时现状及买卖合同的约定为准。本公司保留修改宣传资料的权利,敬请留意项目最新资料,最终的解释权归本公司所有。
声明:本文由入驻焦点开放平台的作者撰写,除焦点官方账号外,观点仅代表作者本人,不代表焦点立场。
