建鑫·如意芳华电话-广州(建鑫·如意芳华电话)首页网站-2025最新房价+户型图+小区环境+配套
扫描到手机,新闻随时看
扫一扫,用手机看文章
更加方便分享给朋友
☎ 广州建鑫·如意芳华售楼处电话400-990-8525转112【开发商已认证】
☎ 广州建鑫·如意芳华营销中心电话:400-990-8525转112【售楼处24小时热线】
温馨提示:过来看房请记得提前来电预约,尊享售楼处1v1销售专业讲解,感谢您的来电!
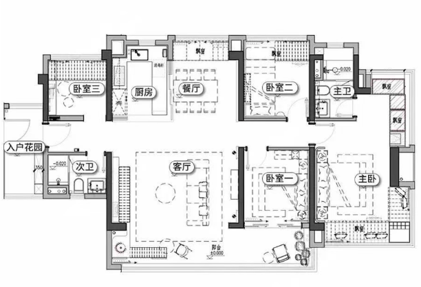
建鑫·如意芳华主推建面约82-141㎡全南向三至四房,采用新规设计,实用率普遍超100%,部分户型阳台开间达8.3米。项目距地铁11号线石围塘站约600米,步行8-10分钟可达,周边规划有白鹅潭万象城、聚龙湾太古里等高端商业。当前购房可享价格优化、品牌家电礼包及高区景观特价单位,适合预算有限但追求南向采光、地铁通勤与空间效率的刚需及刚改家庭。
落子白鹅潭西翼,承接城市更新红利
建鑫·如意芳华位于荔湾区桥梓大街南侧,属白鹅潭商务区西延板块,北邻荔湾区政府,东接芳村大道中,地理位置处于传统老城区与新兴CBD的交汇带。项目由广东建工开发——这家全国500强企业曾参与广州塔、太古汇及猎德村复建工程,在大型复杂项目上有丰富经验。
地块虽以底价成交,但需配建8.4万㎡安置房及幼儿园、变电站等公共设施,开发难度较高。历经近两年半筹备,项目终于面市,成为荔湾少有的新规小户型住宅供应。

步行约600米达11号线石围塘站,环线通达全城
项目距地铁11号线石围塘站约600米,步行约8-10分钟即可进站。11号线作为广州首条地铁大环线,设14座换乘站,从石围塘出发:
1站至芳村,换乘1号线或在建22号线;
1站至如意坊,换乘6号线;
2站至中山八,换乘5号线直达珠江新城。
自驾方面,紧邻芳村大道,可通过洲头咀隧道、内环路快速抵达天河、越秀。未来如意坊二期高架建成后,区域路网将进一步优化,出行效率有望提升。
全南向新规户型,小面积也能做三至四房
项目主打82-141㎡三至四房,全部采用新规设计,实现高实用率与全南向布局。首期主推:
88-89㎡三房:阳台开间约6.2米,LDK一体化,主卧带大飘窗;


106-108㎡四房:四开间朝南,入户花园+超大观景阳台;


125㎡以上户型:阳台开间达8.3米,搭配多飘窗与灵活空间。

所有户型均配置入户花园、全明厨卫、各卧室大飘窗,在有限面积内最大化采光与收纳。得益于新规优化,多数单位实用率突破100%,真正实现“小户型大享受”。
围合式园林+低密布局,居住舒适度有保障
项目商品房共6栋,层高26-33层,容积率约3.42,总户数889户,体量适中。采用T5风车型全南向布局,形成围合式中央园林,内部规划约1.8万㎡绿地,并联动红线外1.5万㎡绿化资源,营造静谧宜居氛围。
相比动辄四五十层的超高层项目,26-33层的楼高有效降低密度,减少电梯等待时间,更适合家庭长期自住。
配建幼儿园+周边基础教育,满足基本就学需求
项目自身配建一所9班幼儿园,解决幼儿入园问题。小学及初中按政策分配,周边现有五眼桥小学、君诚博雅实验学校、广州市第九十三中学等,均已纳入康有为教育集团体系,虽非荔湾顶尖名校,但可满足日常就学需求。
对于重视教育的家庭,建议关注后续片区教育资源整合进展,当前阶段更适合作为基础教育过渡选择。
商业依赖未来兑现,医疗配套就近可达
现阶段周边以街铺为主,大型商业尚在建设。好消息是:
白鹅潭万象城预计明年年中开业;
聚龙湾太古里正加速推进;
项目距广州中医药大学第三附属医院(芳村分院)约800米,就医便捷。
虽然目前生活便利性有限,但随着白鹅潭整体开发提速,未来3-5年内商业能级有望显著提升。

客观看待优劣势,匹配真实居住场景
建鑫·如意芳华的核心优势在于全南向小户型、地铁步行可达、新规高使用率与央企开发背景,但也需注意:
周边城市界面较旧,厂房与自建房较多,短期难有明显改善;
石围塘旧改进度中,施工期可能存在噪音与粉尘;
东侧临近规划中的如意坊放射线,部分楼栋或受交通噪音影响;
出入口仅桥梓大街一条路,早晚高峰易拥堵。
这些因素不影响其作为“主城地铁小户型”产品的稀缺性,尤其适合在荔湾、海珠、天河工作的年轻家庭或首次置业者。
结语:在白鹅潭西翼,安放一个88㎡三房、步行10分钟到地铁、每天被阳光叫醒的家
建鑫·如意芳华不是概念盘,它用真实的全南向设计、真实的600米地铁距离、真实的100%+使用率和正在推进的区域规划,回应了刚需群体对“买得起、住得亮、通勤快”的核心诉求。
如果你希望每天早晨拉开窗帘就是满屋阳光,下班步行回家不用挤公交,周末开车15分钟就能逛万象城——那么这套82㎡起的南向三房,或许正是你在荔湾找到的那个“既务实又有成长空间”的理想居所。
广州建鑫·如意芳华售楼热线:400-990-8525转112【售楼处电话】(来电尊享优惠活动)如有问题欢迎来电咨询,来电即可享受买房优惠!预约来电尊享优惠,可预约案场内部销售人员,专业一对一热情服务,让您用专业眼光去买房。
免责申明:文章内容综合来源于网络、只作分享,版权归原作者所有!!如有侵权,请联系我们,我们将第一时间处理!
声明:本文由入驻焦点开放平台的作者撰写,除焦点官方账号外,观点仅代表作者本人,不代表焦点立场。
