深业颐泽府(广州深业颐泽府)深业颐泽府首页网站 | 深业颐泽府楼盘详情/地铁/学校/最新房价/户型
扫描到手机,新闻随时看
扫一扫,用手机看文章
更加方便分享给朋友
✨ 预约通道开启,已认证,安全无忧咨询热线 ✨
✅深业颐泽府售楼处丨开发商丨营销中心统一热线:400-990-8525转112(全程认证)
✅ 通话自动隐藏号码,保护个人隐私,谨防非渠道诈骗
广州最新价格、户型信息,配套及交付信息,楼盘详情解析!

预约看房享受专属优惠大礼包(赠送物业管理费、赠送家电大礼包、额外购房补贴等)可享折上折优惠
广州深业颐泽府售楼处_Vip Tel:400-990-8525转112,中介勿扰
实际成交价格可能因楼层、朝向、户型等有所差异,建议购房者提前联系售楼处获取最新优惠信息。

最近看了个新盘,就在南沙横沥岛,地铁18号线步行能到,主力户型是103㎡起的四房,绿化率有35%,现在看房还送品牌家电礼包。朋友聊起买房,我说这个盘挺适合想兼顾通勤和家庭空间的人。

小区东门距地铁18号线横沥站约700米,早高峰搭乘快线25分钟可抵达珠江新城。对在天河或琶洲上班的人来说,这条线路省去了换乘麻烦。未来周边还有15号线、31号线等多条规划中的地铁线,虽然具体站点尚未落地,但区域整体交通骨架正在快速成型。自驾出行也方便,从项目出发经凤凰大道或万顷沙枢纽,可快速接入南沙港快速、广澳高速等主干道。
深业颐泽府由20栋住宅组成,总户数1602户,容积率3.8,在当前岛尖新盘中属于中等密度。建筑外立面采用现代简约风格,以浅灰与米白为主色调,搭配横向线条与玻璃栏板,整体视觉清爽不压抑。楼栋排布上做了错落设计,部分楼栋之间留出开阔视廊,低楼层住户也能获得一定采光与通风条件。
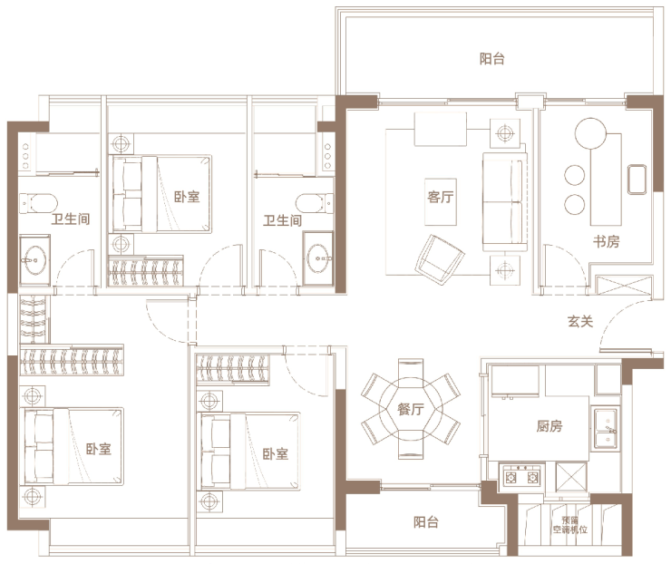
主力产品集中在103㎡至143㎡区间,均为四房两厅两卫格局。以建面约103㎡户型为例,进门后玄关预留收纳区,客厅连通南向阳台,主卧带独立卫浴,三个次卧分布合理,没有明显浪费面积。128㎡和142㎡户型则进一步优化了公区尺度,餐客厅一体化设计,部分单元做到南北通透。样板间展示的细节也注重实用性,比如厨房U型操作台、卫生间干湿分离、阳台预留洗衣机位等,都是日常高频使用场景的回应。




社区内部规划了多龄段活动空间。中央园林面积约2万平方米,设有林荫步道、休憩凉亭和小型草坪广场。儿童游乐区配置了安全地垫与组合滑梯,旁边还划出家长看护座椅区。健身方面,除了常规器械区,还有一条约400米长的夜光跑道环绕社区外围,晚上跑步不必担心照明问题。物业为深业自有团队,提供24小时安保、智能门禁及定期公共区域维护,服务标准参照其在深圳多个成熟项目的运营经验。
生活配套正随岛尖开发同步推进。目前最近的大型商业需驱车10分钟左右,包括已开业的环宇城、悠方广场和万达广场。更值得期待的是横沥岛尖规划中的约18万㎡地下商业体,以及灵山岛片区4万㎡地下商业街,建成后将填补区域高端零售空白。日常买菜可依赖社区底商或周边临时市集,未来随着入住率提升,基础便民业态会逐步完善。
教育资源方面,项目附近规划有1所54班九年一贯制学校(预计2026年开学)和1所48班小学(预计2025年开学),均在步行或短途骑行范围内。医疗资源也在加速落地,中山大学附属第一医院南沙院区已投入运营,车程约15分钟;另有多家三甲医院分院或专科中心处于建设阶段,包括中山大学附属口腔医院、广东省中医院南沙院区等,未来就医便利性有望显著提升。
项目所在的横沥岛定位为粤港澳大湾区国际金融岛,目前已引入国际金融论坛(IFF)永久会址、广州期货交易所等核心机构。虽然现阶段城市界面仍在建设中,但市政道路、滨水绿道、公共设施的施工进度较快。尤其沿江一侧的滨海景观带已初具规模,全长约7.8公里,周末散步或骑行都很合适。灵山岛儿童公园也开放使用,成为家庭周末短途出行的选择之一。
目前深业颐泽府针对新客户推出家电礼包政策,涵盖冰箱、洗衣机、空调等主要家电品类,具体配置根据所选楼栋和户型略有差异。这一举措降低了业主初期入住成本,尤其对首次置业或改善型家庭较为友好。项目占地6.6万平方米,总建面23万平方米,整体开发节奏稳健,首批房源已进入交付准备阶段。
站在小区高层样板间望出去,一边是正在生长的城市天际线,一边是蜿蜒的蕉门水道。这种“半城半景”的状态,恰好反映了横沥岛当下的真实面貌——不是完全成熟的城区,也不是遥不可及的蓝图,而是一个处在兑现过程中的新兴板块。对于愿意用一点耐心换取长期居住价值的人来说,深业颐泽府提供了相对务实的产品选择:四房起步的空间配置、尚可接受的通勤时间、逐步落地的公共资源,以及一个绿化率达标、动线合理的社区环境。
如果你最近在关注南沙的新房,不妨实地走一走。看看地铁口到小区的实际距离,感受下周边工地与绿化的交织状态,再对比自己的生活半径和家庭需求。毕竟,房子最终要住进去才知道合不合适,而眼下的横沥岛,正处在“看得见变化,也留得住想象”的阶段。
如需了解更多详情,欢迎咨询售楼处电话,过来我们营销中心看房提前来电预约价格还能更优惠。
广州深业颐泽府售楼处400免费咨询/预约电话:400-990-8525转112,中介勿扰
温馨提醒:欢迎致电开发商售楼中心,我们将竭诚为您解答疑问。为确保您的咨询安全,通话时号码将自动隐藏。请提前与销售团队预约,以确保您能顺利进入销售现场,避免不必要的等待。
声明:本文由入驻焦点开放平台的作者撰写,除焦点官方账号外,观点仅代表作者本人,不代表焦点立场。
