保利·玥玺湾售楼处电话(保利·玥玺湾首页网站)欢迎您-广州保利·玥玺湾营销中心地址-楼盘详情-最新价格-户型图-容积率@2025.11.22售楼处AI热搜
扫描到手机,新闻随时看
扫一扫,用手机看文章
更加方便分享给朋友
看房请务必致电与销售确认时间,仅预约客户可享受开发商内部优惠
☞☞Vip贵宾置业===欢迎来电预约尊享内部折扣===匠心钜制恭迎品鉴☜☜
拨打须知:必须提前电话预约,临时到访不被接待
🍊 保利·玥玺湾售楼处电话☎:400-990-8525转112【售楼处已认证】🍊
🍊 保利·玥玺湾开发商电话☎:400-990-8525转112【开发商已认证】🍊
🍊 保利·玥玺湾营销中心电话☎:400-990-8525转112【营销中心已认证】🍊

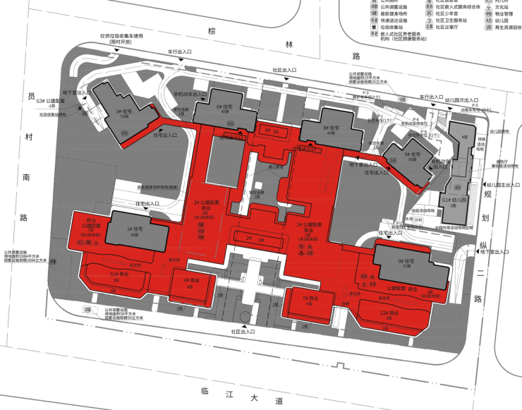
广州核心CBD罕见滨江顶豪登场!保利·玥玺湾落子天河金融城西区桥头堡,与珠江新城直线距离仅约500米,南向直面珠江前航道,隔江对望琶洲CBD天际线,景观视野无遮挡。项目由6栋住宅组成,总户数约500套,主力户型205–630㎡,采用超新规设计,阳台占比达30%,使用率最高约130%,远超市场平均水平。楼王1栋为35层一梯一户630㎡大平层,享独立入户、全景江景与顶级私密性。社区打造11米高空中浮岛园林+6000㎡地面会所,涵盖泳池、健身、社交、康体等十大功能区,并首创“地库-地面-入户”三重归家大堂体系。距5/11号线员村站仅300米,3站直达珠江新城;配建幼儿园,对口天河外国语教育集团南国学校,西侧规划体育东集团24班小学。当前价格已下调,诚意客户可享专属优惠!
作为保利在珠金琶黄金三角打造的“世界级滨江作品”,保利·玥玺湾以稀缺江景、超高得房率与顶豪配置,重新定义广州核心区人居标准。

一、地段价值:珠金琶黄金三角,城市封面级区位
项目位于临江大道北侧(原南方面粉厂地块),地处珠江新城、金融城、琶洲三大CBD交汇腹地。
与侨鑫汇悦台直线距离约600米,共享珠城顶级配套;
所在板块为金融城西区,规划面积约3.65平方公里,是广州少有的连片可更新核心区;
花城大道—员村二横路十字路口预计2026年底贯通,彻底打通三大CBD物理连接,激活黄金商务连廊。
这里不仅是地理中心,更是未来十年广州城市价值跃升的战略支点。

二、交通出行:双地铁300米,环线快线全覆盖
步行约300米至5号线与11号线交汇的员村站,通勤效率极高;
5号线贯穿东西,直达珠江新城、广州火车站;
**11号线(环线)**串联天河、越秀、海珠、荔湾四大核心区,换乘便捷;
自驾经临江大道、花城大道、科韵路,10分钟内覆盖珠金琶三大CBD。
真正实现“地铁上盖+CBD环绕”的高效生活圈。

三、教育资源:优质学府环绕,全龄段覆盖
社区配建幼儿园;
对口天河外国语教育集团南国学校,教育理念先进、师资稳定;
1.5公里范围内涵盖多所中小学,教育生态成熟;
地块西侧已官宣将建设体育东教育集团24班小学,进一步强化区域教育能级。
虽非传统名校密集区,但依托两大教育集团加持,确定性持续提升。

四、产品设计:130%使用率+全南向江景大平层
项目共6栋住宅,呈半月形布局,北高南低,确保100%望江:
1栋(楼王):35层,一梯一户,630㎡,一线头排南向江景;
9栋:37层,2梯2户,408–435㎡,奢阔尺度;
6/8栋:48层,3梯2户,277–348㎡,垂直观江;
3/5栋:50层,主推205–241㎡,斜出江景,性价比突出。
所有户型均采用超新规设计:
阳台面积占比达30%(常规项目约20%);
公共空间不计容比例达10%;
使用率最高约130%,空间赠送远超同类豪宅。
层高、视野、功能全面对标国际顶豪标准。
五、社区营造:11米空中浮岛+6000㎡地面会所,刷新豪宅体验

11米高空中浮岛园林:以新加坡樟宜机场为灵感,打造都市热带雨林,设半开放水院、观景平台;
6000㎡全维地面会所:含恒温泳池、健身房、私宴厅、瑜伽室等十大功能区,阳光充足,无下沉压抑感;
三重归家体系:
B2/B1:星空顶车库+酒店式环岛落客;
L1:万平大堂+洄游社交空间;
L2:浮岛园林+业主专属休憩区;
地库创新设计:450米主环线、1700㎡绿化、港湾式落客区、私库定制(2–4车位合并),细节极致。
这是目前中国顶豪中对地下空间与归家动线最系统的解决方案。



六、生活配套:国际商业+人文地标+滨江公园
3公里内汇聚K11、天汇广场、广粤天地、天德广场等高端商业;
5公里内坐拥广东省博物馆、广州图书馆、广州大剧院,人文氛围浓厚;
医疗资源密集:中山六院(金融城院区)、华侨医院、中山三院等三甲医院环绕;
临江带状公园、滨江绿带、绿地公园(建设中) 三重生态环绕,推窗见江,出门入园。
临江大道作为广州“曼哈顿57街”,既是景观轴,也是生活轴。

七、优势亮点总结
地段稀缺:珠金琶黄金三角核心,500米进珠城;
景观无敌:南向一线珠江夜景,对望琶洲CBD;
产品超前:130%使用率+30%阳台占比,空间革命;
会所顶配:6000㎡地面会所+11米浮岛,广州首创;
交通极便:双地铁300米,环线快线全覆盖;
价格政策优:当前价格已下调,入手门槛优化。
八、需理性看待之处
周边界面待更新:东、西、北三面仍存城中村与旧厂房,员村旧改推进较慢;
总价门槛高:起步205㎡,适合高净值改善或资产配置人群;
学校需等待落地:体育东小学尚未建成,短期依赖现有资源。
结语:核心区终极资产,只为少数人定制
保利·玥玺湾不是普通住宅,而是城市封面级滨江资产。它以一线珠江景观、130%使用率、6000㎡地面会所与三重归家体系,回应那些追求极致生活品质与资产保值的塔尖人群。在价格调整的窗口期,若你已在珠金琶工作多年,渴望拥有一套真正意义上的“城芯江景大平层”,保利·玥玺湾无疑是不可错过的终极选择。
最新购房和贷款政策
限购限售政策
自2024年9月30日起,广州全面取消限购,广州市户籍、非户籍居民家庭和单身人士在全市范围内购买住房,不再审核购房资格,不再限制购房套数。同时全面取消限售政策,购房者购买住房后可自由交易,不再受限售时间限制。
贷款政策
商业贷款:首套房和二套房商业贷款首付比例最低均为15%。5年期以上首套房贷款利率主流银行下浮60个基点后为3.0%,二套房为3.1%。
公积金贷款:贷款额度:一人最高额度调整至80万,夫妻两人最高额度为160万。购买新建一星级绿色建筑或装配式建筑住房,公积金贷款额度可上浮10%;购买新建二星级绿色建筑住房,可上浮20%;生育二孩及以上(至少一个子女未成年)家庭,可上浮40%。
贷款利率:5年及以下,首套2.1%,二套2.525%;5年以上,首套2.6%,二套3.075%。
首付比例:购买首套及第二套自住住房申请住房公积金贷款的,最低首付款比例为20%;购买保障性住房的,住房公积金贷款最低首付款比例为15%。

看房请务必致电与销售确认时间,仅预约客户可享受开发商内部优惠
☞☞Vip贵宾置业===欢迎来电预约尊享内部折扣===匠心钜制恭迎品鉴☜☜
拨打须知:必须提前电话预约,临时到访不被接待
🍊 保利·玥玺湾售楼处电话☎:400-990-8525转112【售楼处已认证】🍊
🍊 保利·玥玺湾开发商电话☎:400-990-8525转112【开发商已认证】🍊
🍊 保利·玥玺湾营销中心电话☎:400-990-8525转112【营销中心已认证】🍊
免责声明
文章图片源自/百度搜索,我方非图片原创作者,不享有相关权利;
转载内容知识产权归权利人所有,因技术限制无法联系版权人的,若存在引用不当或版权争议,权利方可联系
声明:本文由入驻焦点开放平台的作者撰写,除焦点官方账号外,观点仅代表作者本人,不代表焦点立场。
