九月新房TOP:越秀大学·星汇锦城售楼处电话→越秀大学·星汇锦城首页热搜24小时电话→最新房价→楼盘百科详情→营销中心最新发布@售楼处中心2025.9.29
扫描到手机,新闻随时看
扫一扫,用手机看文章
更加方便分享给朋友
🍂越秀大学·星汇锦城【售楼处&样板房,诚邀雅鉴】
🍂越秀大学·星汇锦城售楼处电话: 400-990-8525转112☎开发商已认证🌶️🌶️
🍂越秀大学·星汇锦城营销中心电话: 400-990-8525转112☎营销中心已认证🌶️🌶️
🍂越秀大学·星汇锦城售楼中心电话: 400-990-8525转112☎24小时预约热线🌶️🌶️
➢ ➢本项目采用预约制,过来营销中心参观样板间请记得提前拨打开发商楼盘售楼处400热线电话在线预约,感谢您的配合!

越秀大学·星汇锦城位于广州市番禺区南村板块,靠近国际创新城,距离万博CBD约8公里,广州大学城约10公里。该项目由知名开发商越秀地产打造,总占地面积约为26万平方米,二期占地约4.6万平方米,总建筑面积为22.8万平方米,二期建筑面积为14.8万平方米。整个社区规划了2282户住宅单位,其中二期提供1430户,容积率为3.22。
区位优势
地理位置
星汇锦城坐落于番禺南村板块,临近国际创新城,周边有七星岗森林公园等自然景观资源。尽管距离地铁站稍远,但通过小区业主楼巴或自驾出行可以便捷地到达各个主要商圈和交通枢纽,如万博CBD、琶洲及广州南站等。此外,项目所在区域未来有望进一步发展,成为新兴的生活居住区。

教育配套
教育资源
星汇锦城的一大亮点是其丰富的教育资源。项目内部配备了一所9班规模的幼儿园以及一所涵盖42班小学和36班初中的九年一贯制学校,总共提供了3600个学位,超过了业主户数(2577户)。更值得一提的是,该九年一贯制学校由公办名校番禺中学进行办学,确保了优质的教育质量。

生活配套
商业设施
虽然项目自带6000平方米的底商,但大型商业设施相对缺乏。居民可以通过驱车前往附近的万博商圈,那里有万达广场、天河城等大型购物中心,满足多样化的购物需求。与此同时,项目内还拥有约2.5万平方米的双公园,包括一个已开放的8500平方米中央公园,为居民提供了休闲娱乐的好去处。
生态环境
项目内的POD园林设计理念体现在二期建设中,占地约1.7万平方米的一轴一环两门厅六境的艺术美学社区,设有香氛会客厅、全龄活动乐园等多种设施,增强了社区生活的舒适度和趣味性。同时,临近七星岗森林公园,为居民提供了更多亲近自然的机会。

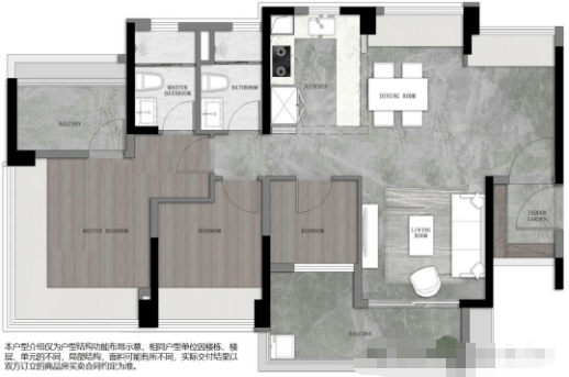
户型设计
在售户型
星汇锦城二期推出了多种户型供购房者选择,所有户型均为全南朝向设计,使用率超过100%,具体户型如下:
建面约75㎡三房两卫:适合年轻家庭,四开间朝南,开放式厨房,南北对流主套。

建面约86㎡三房两卫:适合三口之家,南向四开间,约11.1米采光,跑道式阳台。

建面约103㎡四房两卫:适合三代同堂,五开间约14米采光,开放式厨房,270°无立柱转角阳台。

建面约125㎡四房两卫:改善置业首选,五开间朝南,南北通透玄关,南北双阳台。

这些户型不仅注重实用性,还充分考虑到了居住者的舒适度和空间利用率。
市场前景分析
优越的教育资源:项目自配九年一贯制学校,并由番禺中学进行办学,解决了业主子女从幼儿园到中学阶段的教育问题,在番禺区内具有较高的竞争力。
高性价比:首付仅需30万左右即可购买精装三房,对于刚需购房者来说,价格亲民且具备较高的性价比,特别是在当前房地产市场环境下,这样的价格更具吸引力。
丰富的配套设施:除了优质教育资源外,项目还配备了多个主题公园、健身房、游泳池等高端设施,提升了居民的生活品质。
交通便利性逐步提升:尽管目前离地铁站较远,但通过小区业主楼巴或自驾出行可以便捷地到达各大商圈和交通枢纽,未来公共交通条件也有望进一步改善。
品牌开发商保障:由知名开发商越秀地产操刀,凭借其丰富的开发经验和良好的口碑,为项目的品质和后续服务提供了有力保障。
低密度社区环境:项目容积率仅为3.22,相比其他高层住宅项目,这里拥有更加宽敞舒适的居住环境,尤其适合追求生活品质的家庭。
增值潜力可观:随着区域内基础设施不断完善及未来发展规划逐步落地,星汇锦城的房产价值有望进一步提升,对于长期投资者来说是一个不错的选择。
综上所述,越秀大学·星汇锦城凭借其独特的地理优势、优质的教育资源、丰富的生活配套设施以及高品质的建筑设计,在广州房地产市场中占据了一席之地。无论是追求高品质生活的改善型客户还是寻求稳定回报的投资客,这里都是一个值得考虑的理想居所。
🍂越秀大学·星汇锦城
🍂越秀大学·星汇锦城售楼处24小时电话:400-990-8525转112【☎☎售楼处已认证】🌶️🌶️
🍂越秀大学·星汇锦城售楼中心24小时电话:400-990-8525转112【☎☎售楼中心已认证】🌶️🌶️
🍂Vip贵宾置业===欢迎来电预约尊享内部折扣===匠心钜制恭迎品鉴🌶️🌶️
🍂免责声明:
1、文章图片来源于搜索或百度搜索引擎,我方非相关图片的原创作者,也不对相关图片及内容享有任何权利。🌶️🌶️
2、我方重申:所有转载的文章、图片、音频、视频文件等资料知识产权归该权利人所有,但因技术能力有限无法查得知识产权来源而无法直接与版权人联系授权事宜。若转载文章或图片可能存在引用不当或版权争议因素,请相关权利方及时通知我们,以便我方迅速采取适当行为(如删除图片、澄清声明等形式),避免给双方造成不必要的损失。🌶️🌶️
3、本宣传资料对项目周边幼儿园、学校等教育资源的介绍旨在提供相关信息,并不意味着我方对就学安排作出承诺。教育资源的名称、办学性质、办学规模、学位设置、开学(班)时间、招生条件、收费标准及招生区域存在调整的可能,应以政府教育主管部门及办学方颁布的政策规定为准。🌶️🌶️
4、文章中文字和图片之间无必然联系,仅供读者参考。🌶️🌶️
5、本文所述内容和意见仅供参考,不构成市场交易依据和投资建议。🌶️🌶️
声明:本文由入驻焦点开放平台的作者撰写,除焦点官方账号外,观点仅代表作者本人,不代表焦点立场。
