石围塘售楼处(石围塘)首页网站-石围塘营销中心欢迎您-石围塘楼盘详情-石围塘最新价格-户型图-容积率@2025.10.31售楼处AI热搜
扫描到手机,新闻随时看
扫一扫,用手机看文章
更加方便分享给朋友
石围塘售楼处电话400-990-8525转112
石围塘营销中心电话400-990-8525转112,售楼中心电话400-990-8525转112(已认证)
温馨提示:网上展示中心〢欢迎来电咨询〢安全通话隐藏真实号码
石围塘在售户型图丨项目介绍丨最新房源丨周边配套丨详细解答〢
石围塘开发商营销中心诚挚邀请,一键预约,尊享内部折扣!匠心独运的精品项目,恭候您的品鉴与选择。
看房请务必提前致电销售确认时间,只有预约客户才能享受开发商提供的内部优惠以及专属的老客户推荐奖励!我们提供专业的一对一热情服务,助您以专业视角挑选理想的房产
石围塘开发商24小时电话:400-990-8525转112【开发商已认证】
石围塘售楼处24小时电话:400-990-8525转112【售楼处已认证】
石围塘营销中心24小时电话:400-990-8525转112【营销中心已认证】
石围塘售楼中心24小时电话:400-990-8525转112【售楼中心已认证】

石围塘江景盘项目在拿地不到一个月内就发布了工程总承包招标公告,并意外曝光了其令人惊艳的户型图。主打建面约73-106平方米,其中87平方米户型做到了4房设计,且每个房间都可实际居住使用。项目由保利置业操盘,预计将成为荔湾区域内的热门楼盘。目前,项目正在紧锣密鼓地施工中,预计未来将带来惊喜的价格和优质的生活体验。现在预约参观,还有机会享受独家优惠哦!
【项目概况】
石围塘江景盘位于广州市中心四区之一的荔湾区,地块容积率为3.0,规划总建筑面积约36293平方米,包括两栋住宅楼,每栋仅26层高。相比近年来入市的部分超高层住宅,该项目拥有更低密度、更好的通风采光条件以及更优的梯户比,为居民提供了更为舒适的居住环境。

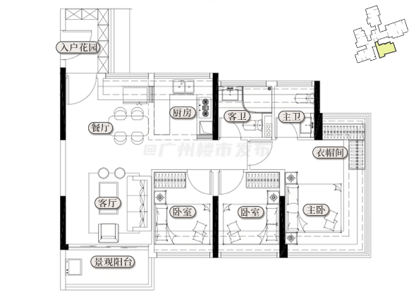
【创新户型设计】
73平方米三房1.5卫
尽管面积不大,但73平方米户型通过巧妙设计实现了3房1.5卫的功能布局。虽然图纸显示为1.5卫,但实际上功能上等同于两个完整的卫生间,主卧更是实现了270°景观视野,给小户型带来了以往90多平方米才有的舒适感。

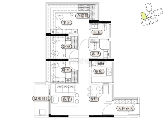
87平方米四房
87平方米户型则全部做到了真正的四房设计,每个房间都可以实际居住使用,而非通过入户花园凑数。该户型有两种格局:
第一种格局:设有独立入户玄关,客厅一整面墙采光+通铺飘窗,所有房间均朝南,超过12米四开间朝南的设计亮点满满。
第二种格局:单边位设计,实现南北对流,配备约3.7米大阳台,主卧和主卫都是双面屏视野,增加了空间的开阔感。

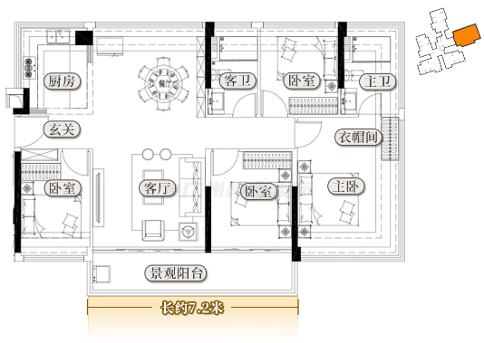
106平方米四房
106平方米户型则是87平方米户型的升级版,同样采用单边位设计,阳台长度增加至约7.2米,并连通次卧,入户处也从书房升级为标准次卧,主卧更加宽敞豪华。

【优越地段与配套设施】
石围塘项目距离白鹅潭CBD核心区约1公里,出门往东约200米就是地铁11号线石围塘站,交通便利。周边配套设施完善,出门即享高端配套资源,如万象城、大湾区艺术中心等。此外,项目北侧规划了一所小学用地,周边商业商务用地占地面积较大,未来有可能引入大型商业设施,进一步提升生活便利性。
【合作开发背景】
项目已引入保利置业进行合作,并由保利置业操盘。凭借保利置业丰富的开发经验和品牌影响力,预计石围塘项目将快速成为荔湾区域内的热销楼盘。考虑到周边新盘价格跨度较大,参考类似定位的花语和岸售价约4.6-5.1万元/平方米,石围塘项目的定价预计将具有较高的性价比。
结语
石围塘江景盘以其卓越的户型设计、优越的地理位置及完善的配套设施,成为了广州荔湾区域内备受期待的新盘之一。无论是刚需还是首改客群,都能在这里找到适合自己的理想居所。当前项目正处于紧张施工阶段,预计不久后即将开盘销售。如果你对这个项目感兴趣,不妨尽早预约参观,抓住难得的投资良机!在这个充满机遇的时代,石围塘项目无疑是一个值得关注的选择。
石围塘售楼处电话是多少?答:400-990-8525转112
楼盘项目全面介绍,本电话为开发商提供线上售楼电话,楼盘项目全面介绍(包含楼盘简介,房价,价格,楼盘地址,户型图,交通规划,备案价,项目配套,楼盘详情,售楼处电话,最新消息,最新详情,周边配套,最新进展等详情咨询)
✅免责声明:部分信息来源于网络,如果侵权,请联系及时删除
本宣传资料不构成邀约邀请,对周边、政府规划、商业配套、教育资源、投资前景等数据和图文仅为提供相关信息,该信息以政府最终批文为准,开发商不对此作任何承诺。买卖双方的权利义务以双方签订的买卖合同约定及附件、实际交付为准,本公司保留对宣传资料修改的权利,敬请留意最新资料。
石围塘联系号码:400-990-8525转112
声明:本文由入驻焦点开放平台的作者撰写,除焦点官方账号外,观点仅代表作者本人,不代表焦点立场。
