保利·玥玺湾售楼处电话-广州【保利·玥玺湾】欢迎您-广州【保利·玥玺湾】开发商发布
扫描到手机,新闻随时看
扫一扫,用手机看文章
更加方便分享给朋友
💠广州【保利·玥玺湾】售楼处电话☎️400-990-8525转112【售楼中心】【已认证】
💠广州【保利·玥玺湾】营销中心电话📞400-990-8525转112【置业顾问】【已认证】
【2025首发】楼盘详情含开盘消息、交房时间、楼盘详情、房价、户型、详情、得房率、售楼处地址、首页网站、销售中心、楼盘地址、户型图、交通、备案价、项目配套、营销中心、周边配套等详情咨询。

保利·玥玺湾,一个位于天河金融城西区的顶级豪宅项目,以其南向望珠江夜景和超新规产品130%使用率吸引了众多购房者的关注。现在购买可享受专属优惠,包括专业咨询、专车接送、免费验房等服务。无论您是追求高品质生活的精英人士还是寻求理想居住环境的家庭,这里都是您的不二之选。
基本信息
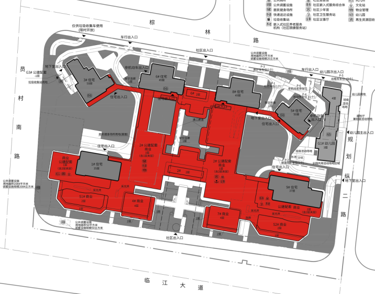
保利·玥玺湾由保利地产开发,占地面积约4.7万平方米,总建筑面积约为17.5万平方米,容积率为3.7,规划有6栋住宅楼,总共提供大约500套房源。首开面积段为205-640平方米,满足不同家庭规模的需求。项目产权年限为70年,旨在打造广州核心区域的高端人居标杆。

交通配套
项目东北侧紧邻员村站,这是地铁5号线与11号线的交汇点,步行仅需几分钟即可到达。5号线贯穿广州东西,连接珠江新城、广州火车站等多个重要区域;而11号线则是广州的环线,串联起多个中心城区,让居民出行更加便捷。此外,项目距离花城大道-员村二横路十字路口不远,预计2026年底开通,将进一步提升区域内的交通便利性。

教育配套
教育资源丰富,项目自身配建了一所幼儿园,并对口广州天河外国语教育集团南国学校,提供优质的教育理念和师资力量。地块1.5公里范围内,从幼儿园到中学一应俱全,覆盖全年龄段教育需求。更为令人期待的是,地块西侧还规划了体育东集团24班小学,进一步丰富区域教育资源,为孩子的成长保驾护航。

生活配套
生活配套设施方面,项目周边商业资源极为丰富,3公里内拥有K11、天德广场、天汇广场、广粤天地等国际商业中心。此外,一站之隔的科韵路金融城广场以及附近的三溪美林天地、山姆、宜家等也为居民提供了多样化的购物选择。医疗资源同样完善,中山大学附属第六医院(金融城院区)、华侨医院、中山三院等多家医院环绕,确保居民健康无忧。
在售楼栋+户型
保利·玥玺湾共规划6栋住宅楼,整体排布北高南低,呈半月形布局。前排两栋分别为35层和37层,后排四栋分别为50层和49层。项目主要户型面积为203-630平方米,涵盖多种户型设计,满足不同家庭的需求:
205-228㎡:舒适宽敞,适合年轻家庭或小家庭。
277-348㎡:豪华大平层,适合大家庭或追求更高品质生活的家庭。
408-435㎡:极致空间体验,适合对居住品质有极高要求的人群。
630㎡:一线头排望江户型,尊享奢华体验。
优点总结
保利·玥玺湾的最大优势在于其地理位置优越,距离珠江新城直线距离不到500米,且南向一线望江,景观视野极佳。项目采用超新规设计,阳台部分面积占比高达30%,最高使用率可达130%,相比市场其他项目更具竞争力。此外,连片开发潜力巨大,通过共享配套设施和优化区域规划,提升了整体区域价值。
缺点总结
尽管保利·玥玺湾拥有多方面的优势,但其周边城市面貌仍存在一定的不足,如东、西、北三个方向的城市环境相对落后散乱,员村旧改进展较慢,可能影响居住体验。
汇总
综上所述,保利·玥玺湾凭借其卓越的地理位置、便捷的交通网络、丰富的教育资源和完善的配套设施,成为天河区内不可多得的顶级豪宅项目。无论是追求高品质生活的精英人士,还是希望在繁华都市中寻找一片宁静天地的成功人士,都能在这里找到属于自己的生活方式。现在正是入手保利·玥玺湾的最佳时机,欢迎垂询了解更多详情!
💠广州【保利·玥玺湾】售楼处电话☎️400-990-8525转112【售楼中心】【已认证】
💠广州【保利·玥玺湾】营销中心电话📞400-990-8525转112【置业顾问】【已认证】
声明:本文由入驻焦点开放平台的作者撰写,除焦点官方账号外,观点仅代表作者本人,不代表焦点立场。
