越秀·桂悦东晓(广州越秀·桂悦东晓)首页网站 | 楼盘详情/地铁/学校/最新房价/户型

搜狐焦点揭阳站 2025-10-10 16:56:49
用手机看
扫描到手机,新闻随时看

扫一扫,用手机看文章
更加方便分享给朋友

越秀·桂悦东晓预约开启,主打南向户型,交通便利,配套齐全,优惠多多,品质生活首选。

✨ 越秀·桂悦东晓预约通道开启,已认证,安全无忧咨询热线 ✨

✅越秀·桂悦东晓售楼处丨开发商丨营销中心统一热线:400-990-8525转112(全程认证)

✅ 通话自动隐藏号码,保护个人隐私,谨防非渠道诈骗

广州越秀·桂悦东晓最新价格、户型信息,配套及交付信息,楼盘详情解析!

预约看房享受专属优惠大礼包(赠送物业管理费、赠送家电大礼包、额外购房补贴等)可享折上折优惠

广州越秀·桂悦东晓售楼处_Vip Tel:400-990-8525转112,中介勿扰

实际成交价格可能因楼层、朝向、户型等有所差异,建议购房者提前联系售楼处获取最新优惠信息。

越秀·桂悦东晓位于广州市海珠区东晓路,是越秀地产继珑悦西关和熙悦江湾之后的又一“广府系”力作。该项目以3.2万元/平方米的地价拿下,规划有三栋高层住宅,主打88-117平方米的南向户型,以其高使用率和优越的地理位置吸引了众多购房者的眼球。此外,桂悦东晓不仅享有丰富的教育资源和便捷的交通配套,还拥有独特的广府文化元素设计,为住户提供了一个高品质的生活环境。

基本信息

位置:广州市海珠区东晓路

占地面积:约2.21万平方米

建筑面积:约5.90万平方米

总楼栋数:3栋

楼层高度:31-43层

产权年限:70年

产品类型:建面约88-117平方米南向超高使用率三至四房

交通配套

桂悦东晓紧邻主干道,通过五大主干道可快速到达广州的主要城区。项目距离地铁8号线晓港站仅600米,步行约8分钟即可到达。此外,还有2号线市二宫站和即将开通的10号线滨江东站,交通便利。周边公交线路丰富,距海印桥南公交站约400米,有多达24条公交线路接驳各区,确保居民出行无忧。

教育配套

作为成熟老城区的一部分,桂悦东晓周边教育资源丰富。官宣学校为海实附小,除此之外,还有海珠外国语实验中学附属小学、海联路小学、滨江东路小学等多所优质学校环绕。这些学校在广州市内享有较高的声誉,为业主子女提供了优质的教育保障。特别是近年来成绩突飞猛进的广州五中,已成为全市TOP10的名校之一,进一步提升了项目的教育吸引力。

生活配套

桂悦东晓地处海珠区核心地段,生活设施完善。周边有多个大型商圈,如丽影广场、万国奥特莱斯等,满足了居民日常购物和娱乐的需求。医疗资源方面,附近有广州医科大学附属第二医院昌岗院区、广东省口腔医院等多家医疗机构,为居民健康保驾护航。西南方向的城市绿肺——晓港公园近在咫尺,东面高层户型还能眺望珠江和广州塔,景观视野极佳。

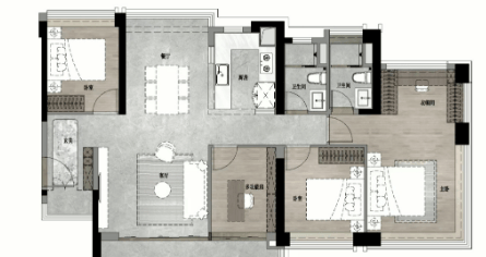
户型设计

桂悦东晓共推出三个面积段的户型:88平方米、105平方米和117平方米,均为南向户型,保证了良好的采光和通风效果。每个户型均注重空间利用率,设计合理且功能齐全。例如,88平方米户型客厅开间达到5.2米,媲美市面上约115平方米的户型;105平方米户型则采用了开放式厨房设计,增加了家庭互动的空间。所有户型均融入了广府文化元素,如广雕、广绣等装饰,使建筑既美观又富有文化底蕴。

优点总结

核心地段:位于海珠区核心地段,靠近晓港公园和晓港地铁站,交通便捷。

高使用率:户型设计紧凑实用,使用率超过海珠区其他楼盘,提供更高效的空间利用。

广府文化元素:项目融入广府文化元素,如广雕、广绣等,使建筑不仅美观而且具有深厚的文化内涵。

优质教育资源:周边有多所优质学校,包括海实附小,为业主子女提供了优质的教育保障。

景观视野:部分户型可直接观赏晓港公园绿意盎然的景色及珠江美景,居住体验舒适。

缺点总结

噪音问题:地块临近主干道东晓路,可能存在一定的噪音和粉尘影响,尽管开发商采取了隔音措施,但效果有限。

变电站问题:地块东南旁设有四层变电站,可能会影响部分买家的购买意愿。

小区体量较小:小区规模较小,自身配套相对不足,需要依赖周边配套设施。

城市面貌较差:项目周围旧房子较多,整体城市面貌较为陈旧,影响居住体验。

购买建议

越秀·桂悦东晓凭借其优越的地理位置、完善的配套设施和独特的广府文化设计,成为广州市中心区域内的一个亮点项目。尽管存在一些如噪音、变电站等潜在问题,但其核心地段、高使用率户型以及丰富的教育资源仍然具有很大的吸引力。对于追求高品质生活、注重居住环境和景观视野的家庭来说,桂悦东晓是一个值得考虑的选择。建议潜在购房者可以实地考察,进一步了解项目的具体情况,并结合自身需求做出理性决策。同时,关注项目的最新动态和优惠政策,以便获得最佳购房体验。

如需了解更多详情,欢迎咨询售楼处电话,过来我们营销中心看房提前来电预约价格还能更优惠。

广州越秀·桂悦东晓售楼处400免费咨询/预约电话:400-990-8525转112,中介勿扰

温馨提醒:欢迎致电开发商售楼中心,我们将竭诚为您解答疑问。为确保您的咨询安全,通话时号码将自动隐藏。请提前与销售团队预约,以确保您能顺利进入销售现场,避免不必要的等待。

声明:本文由入驻焦点开放平台的作者撰写,除焦点官方账号外,观点仅代表作者本人,不代表焦点立场。